Подразделы |
Главная
››› Инфраструктура
››› Градостроительство и архитектура
››› Проект генерального плана городского округа Фрязино
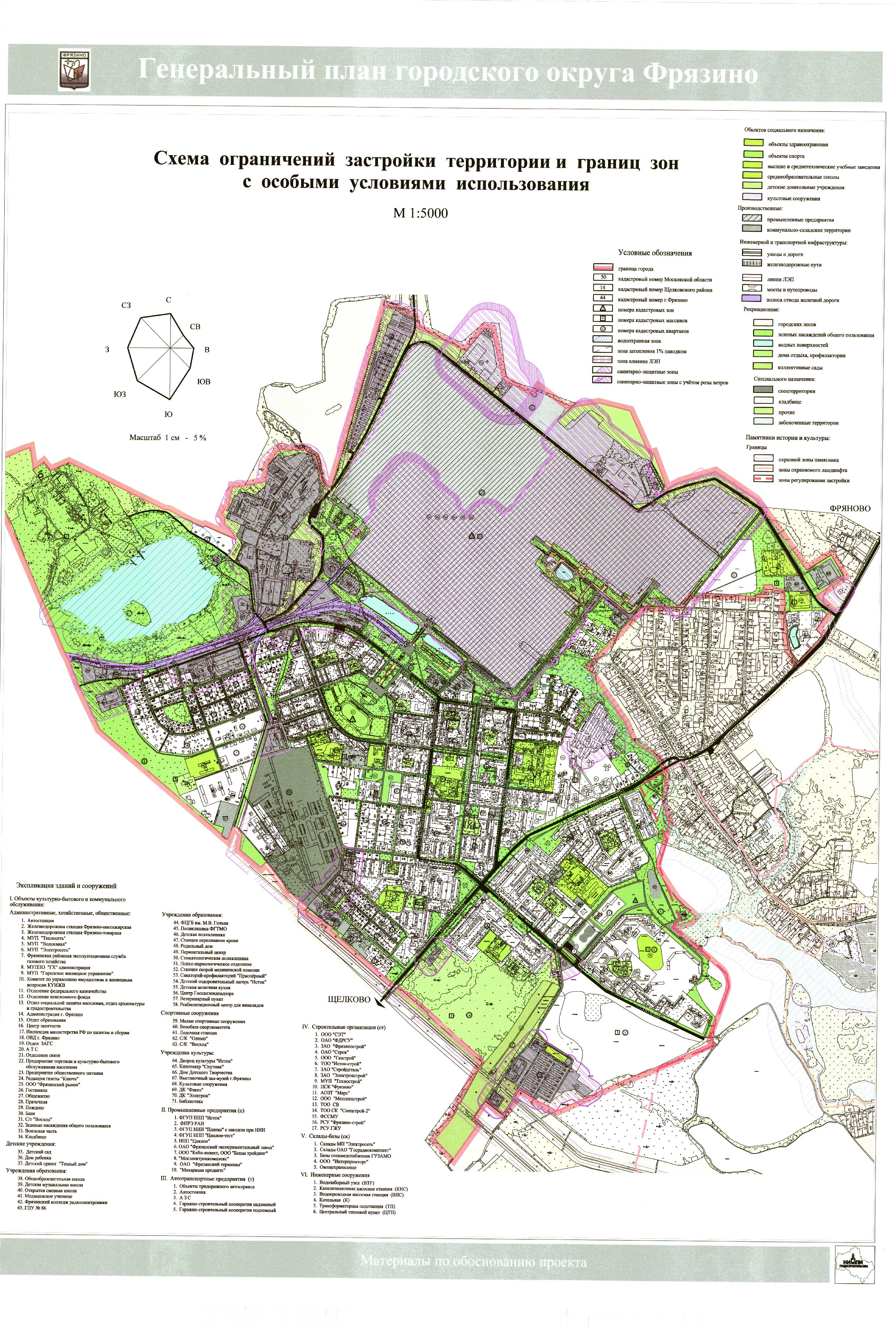
Проект генерального плана городского округа Фрязино1. Схема современного использования территории (опорный план) 2. Генеральный план (основной чертеж) 3. Схема результатов анализа сложившейся застройки и развития территории 5. Схема ограничений застройки территории и границ зон с особыми условиями использования 6. Схема зон планируемого размещения объектов капитального строительства местного значения 8. Схема планируемого размещения объектов электро-, тепло-, газо- и водоснабжения
|
|
| |
